Bồn tiểu nam thông số kỹ thuật - 3 lưu ý khi lắp đặt sản phẩm

Bồn tiểu nam thông số kỹ thuật - 3 lưu ý khi lắp đặt sản phẩm

Đôi khi, việc lắp đặt bồn tiểu có thể xảy ra sự cố do ta không hiểu rõ về các thông số kỹ thuật của bồn. Trong bài viết này, Hita sẽ cùng bạn tìm hiểu về bồn tiểu nam thông số kỹ thuật và 3 lưu ý trong quá trình lắp đặt sản phẩm.

Đôi nét về sản phẩm bồn tiểu nam

Bồn tiểu nam là thiết bị vệ sinh chuyên dùng cho nhu cầu tiểu tiện của nam giới (đôi khi là cả nữ giới). Tùy vào từng mục đích sử dụng mà bồn tiểu sẽ có mẫu mã, kích thước và thiết kế khác nhau.

>>>XEM THÊM: 4 mẹo giúp bạn chọn bồn tiểu nam treo tường vừa ý, đẹp nhà

Có rất nhiều mẫu bồn tiểu nam
Có rất nhiều mẫu bồn tiểu nam

Có hai loại bồn tiểu thông dụng hiện nay gồm:

  • Bồn tiểu đặt sàn: Đây là dạng bồn tiểu có chân đứng chống xuống đất. Bồn đặt sàn thường có thiết kế lớn  và đường ống dẫn thải đặt bên dưới sàn.
  • Bồn tiểu treo tường: Bồn treo tường là dạng bồn không chân. Nhờ được lắp đặt ngay lên tường nên bồn treo tường rất đa dạng về mẫu mã và kích cỡ.

Bồn tiểu nam thông số kỹ thuật

Thông số kỹ thuật là điều mà khá nhiều khách hàng e ngại khi xem sản phẩm. Tuy nhiên, một khi bạn chịu tìm hiểu chúng thì thông số kỹ thuật sẽ cung cấp rất nhiều thông tin hữu ích cho quá trình chọn mua sản phẩm của bạn đấy. Sau đây, chúng ta sẽ cùng đi qua các thông số cơ bản của bồn tiểu nam và ý nghĩa mà chúng truyền đạt nhé.

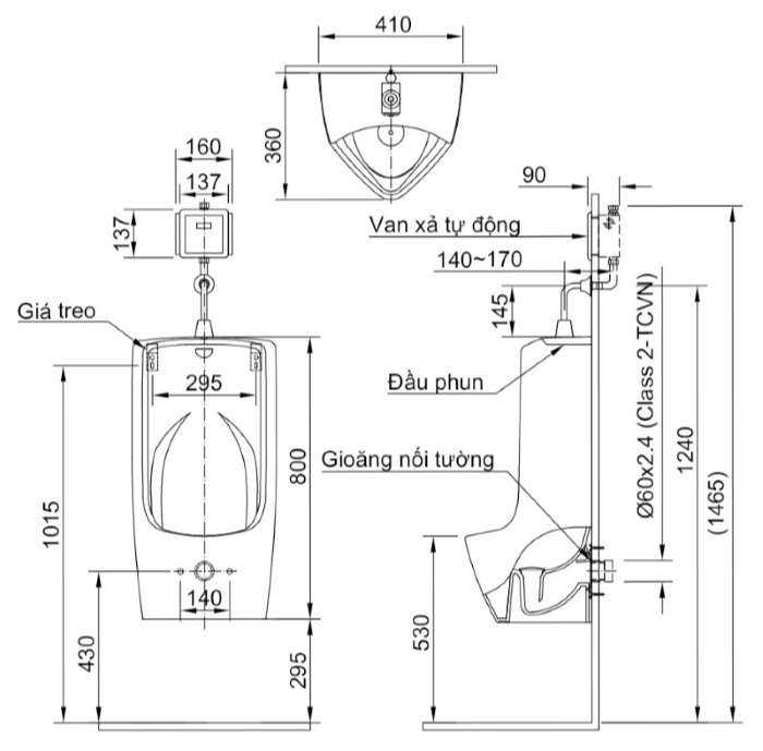
Bản vẽ bồn tiểu nam

Trước hết, ta hãy cùng nhìn qua thứ được gọi là bản vẽ hay bản thiết kế của bồn tiểu. Trên bản vẽ này sẽ có khá nhiều con số và mục đích của chúng là mô tả chính xác sản phẩm trông như thế nào ngoài đời thật.

Bản vẽ bồn tiểu nam
Bản vẽ bồn tiểu nam
Bản vẽ 3d max bồn tiểu nam
Bản vẽ 3d max bồn tiểu nam
Bản vẽ cad bồn tiểu nam
Bản vẽ cad bồn tiểu nam

Thông số kỹ thuật bồn tiểu nam

Giờ, ta sẽ cùng xem các con số trên nói gì về sản phẩm nhé!

Thông số cơ bản nhất của bồn tiểu là chiều dài x chiều rộng x chiều cao - hay nói cách khác là diện tích của sản phẩm. Đối với sản phẩm mẫu trên, ta có diện tích bồn là 410 x 360 x 800 mm. Các loại bồn treo tường như trên sẽ có các thông số yêu cầu về độ cao lắp đặt sản phẩm. Như trong mẫu dưới, độ cao yêu cầu là 295mm từ chân bồn đến mặt đất.

Thông số kỹ thuật
Bồn tiểu nam thông số kỹ thuật

Thông số tiếp theo cần lưu ý là vị trí lỗ thoát thải. Đây là nơi mà bồn sẽ kết nối với hệ thống đường ống dẫn thải của tòa nhà để có thể hoạt động.

=> Vị trí của đầu lấy nước cũng cần được chú ý để đảo bảo sản phẩm lắp đặt trơn tru, hiệu quả.

Một thông số quan trọng khác là độ rộng của lòng bồn tiểu. Bề rộng lớn sẽ tạo cảm giác thoải mái khi đi vệ sinh đồng thời hạn chế tối đa việc nước tiểu văng ra ngoài. Theo như hình trên, độ rộng lòng bồn là 295mm.

Ngoài ra, khi mua sản phẩm, bạn cũng nên hỏi về khả năng xả nước, áp lực nước và lượng xả mỗi lần sử dụng của bồn. Các thông số này thường không nằm trên bản thiết kế nên đôi khi bị bỏ quên.

3 lưu ý khi lắp đặt bồn tiểu nam

Khi đã nắm được ý nghĩa của thông số kỹ thuật, ta sẽ nhận ra được một vài lưu ý như sau:

  • Không thiết kế ống xả, ống lấy nước quá sát tường: Điều này có thể cản trở việc lắp đặt do cả hai đường ống này thường sẽ lắp vào chính giữa bồn tiểu.
  • Nên xây dựng đường ống hợp lý, phù hợp với sản phẩm dự định lắp đặt ngay từ đầu: Sự chuẩn bị này sẽ hạn chế tối đa việc phải sửa chữa nhà vệ sinh để lắp bồn.
  • Cân nhắc về khả năng sử dụng sản phẩm: Bồn tiểu nam khá đa dạng về mẫu mã - nhất là dạng bồn tiểu treo tường. Để chắc rằng bản thân và những người sử dụng có trải nghiệm tốt nhất, bạn hãy cân nhắc chọn mẫu bồn có kích thước thật phù hợp nhé.
Nắm rõ thông số kỹ thuật để lắp đặt bồn tiểu hợp lý
Nắm rõ thông số kỹ thuật để lắp đặt bồn tiểu hợp lý

Một câu hỏi mà nhiều người lắp đặt thiết bị vệ sinh công trình thường thắc mắc là “nên bố trí bồn tiểu nam cách nhau bao nhiêu?” Để trả lời câu hỏi này, bạn cần dựa trên diện tích của bồn, đặc biệt là phần chiều ngang. Dựa trên số liệu ấy, bạn cân nhắc nới khoảng cách giữa các bồn từ 30 - 60cm (có thể hơn).

>>>XEM THÊM: Quy tắc bố trí bồn tiểu nam - Cách lắp đặt bồn chuẩn xác nhất

Trên đây là bồn tiểu nam thông số kỹ thuật và một vài lưu ý về cách lắp đặt bồn tiểu. Mong rằng bài viết này của Hita đã giúp bạn có được các thông tin hữu ích.

Nếu có nhu cầu cần tư vấn hoặc tìm hiểu thêm về sản phẩm bồn tiểu nam, bạn có thể liên hệ với HIta - đơn vị phân phối sản phẩm chính hãng uy tín chiết khấu tốt. Hita rất hân hạnh được phục vụ bạn qua đường dây nóng bên dưới bài viết.

Xem ngay các loại bồn tiểu nam đang được chiết khấu giá tốt tại HITA:

Bồn tiểu nam treo tường Caesar U0230
CAESAR
Thoát ngang
665.510đ
1.091.000đ
-39%
5.0 (1 đánh giá)
Bồn tiểu nam treo tường Caesar U0282
CAESAR
Thoát ngang
1.633.580đ
2.678.000đ
-39%
Bồn tiểu nam treo tường van cảm ứng Caesar UA0283
CAESAR
Thoát ngang
4.769.590đ
7.819.000đ
-39%
Bồn tiểu nam đặt sàn van cảm ứng Caesar UA0284
CAESAR
Thoát sàn
6.258.600đ
10.260.000đ
-39%
Bồn tiểu nam đặt sàn Caesar U0296
CAESAR
Thoát sàn
2.042.280đ
3.348.000đ
-39%
Bồn tiểu nam INAX U-411V (U411V)
Giảm thêm Giảm thêm 110.000đ
INAX
Thoát ngang
4.633.000đ
5.650.000đ
-18%
Bồn tiểu nam INAX U-431VR (U431VR)
Giảm thêm Giảm thêm 70.000đ
INAX
Thoát ngang
2.681.400đ
3.270.000đ
-18%
Bồn tiểu nam INAX U-440V (U440V)
Giảm thêm Giảm thêm 50.000đ
INAX
Thoát ngang
1.832.800đ
2.320.000đ
-21%
 

Nhận xét bài viết (0 bình luận)
HỎI VÀ ĐÁP (0 bình luận)
Call Button Zalo Button