Giỏ hàng của bạn đang trống

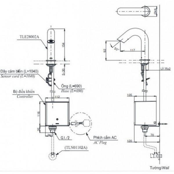
Vòi cảm ứng TLE28002A
Bộ điều khiển TLE01502A1 (dùng điện)
Van dừng và dây cấp vòi nóng lạnh TLN01103A
Van điều chỉnh nhiệt độ TLE05701A
Giá sốc:
12.975.200đ -20%
16.219.000đ
0%
0 đánh giá
0%
0 đánh giá
0%
0 đánh giá
0%
0 đánh giá
0%
0 đánh giá
Áp dụng ngay
Thợ giỏi chuẩn tay nghề, được đào tạo bài bản
Không phí ẩn, không vẽ vời, bảo hành nghiêm túc
| Thương hiệu | TOTO |
| Nơi sản xuất | Trung Quốc, Nhật Bản |
| Bảo hành | 24 tháng |
| Chất liệu | Đồng |
| Lớp mạ (màu) | Crom/Nikel |
| Loại vòi | Cảm ứng |
| Độ cao vòi | Vòi cổ thấp |
| Chế độ | Nhiệt độ |
| Vị trí lắp vòi | Trên chậu / bàn |
| Kiểu lắp vòi | 1 lỗ |
| Nguồn | Dùng Điện |
| Áp lực nước | 0.05~0.75 MPa |
| Kích thước đầu vòi | 117 mm |
| Nguồn điện | 220V~240V |
Đăng ký xem hàng tại showroom:
Địa chỉ: 111 - 113 Kinh Dương Vương, Phường 12, Quận 6, TP.HCM
Hotline: 0868.804.440