Thông tin sản phẩm vòi chậu gật gù TOTO TLP02309BA nóng lạnh gắn tường
- Danh mục: Vòi chậu
- Loại: Vòi chậu gắn tường (Vòi ngắn)
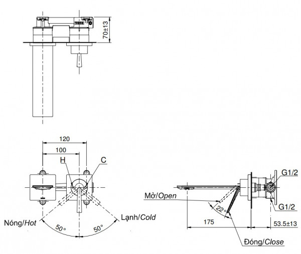
- Kích thước: 175 mm (Từ tâm xả nước đến tường)
- Chất liệu: Thép không gỉ
- Áp lực nước: 0.05 ~ 1.0 MPa
- Loại: Gắn tường, hai lỗ
- Chế độ nước: Nóng lạnh
- Nhiệt độ cấp nước: 4~90°C
- Lượng xả nước: 5,0 L/phút
Tùy chọn:
- TLP02309BA#BBR - Màu sắc: Đồng Mờ
- TLP02309BA#PBR - Màu sắc: Đồng
- TLP02309BA - Màu sắc: Chrome
- TLP02309BA#MBL - Màu sắc: Đen Mờ
- TLP02309BA#PN - Màu sắc: Niken
- TLP02309BA#BN - Màu sắc: Nickel Mờ
- TLP02309BA#PFG - Màu sắc: Vàng Bóng
- TLP02309BA#BFG - Màu sắc: Vàng Mờ
*Lưu ý: Các sản phẩm mạ màu (trừ màu Chrome) chỉ được sản xuất theo đơn đặt hàng

Đặc điểm nổi bật vòi lavabo gắn tường TOTO TLP 02309BA
- Công nghệ gạt êm ái
- Lớp mạ Niken dày gấp 3 lần, chống ăn mòn cao
- Đường nét viền mỏng chỉ 3mm, thanh mảnh gần như vô hình
- Vẻ ngoài thanh thoát đem đến sự sang trọng đẳng cấp cho không gian tắm
Bản vẽ vòi lavabo TLP02309B A TOTO gắn tường

Xem thêm