Giỏ hàng của bạn đang trống
Men sứ chống dính CEFIONTECT: Bồn tiểu nam TOTO UT901H được trang bị lớp men sứ CEFIONTECT, một công nghệ độc quyền của TOTO. Lớp men này có khả năng chống dính và ngăn ngừa sự bám bẩn, giúp bề mặt bồn tiểu luôn sạch sẽ và dễ dàng vệ sinh. Điều này không chỉ tăng tính thẩm mỹ cho sản phẩm mà còn giúp tiết kiệm thời gian và công sức trong việc bảo trì.
Hệ thống xả tiết kiệm nước: Bồn tiểu này được thiết kế với hệ thống xả tiết kiệm nước, giúp giảm lượng nước tiêu thụ trong mỗi lần xả. Với lượng nước xả chỉ 0.5L, sản phẩm này góp phần bảo vệ môi trường và giảm chi phí sinh hoạt cho người sử dụng. Đây là một lựa chọn lý tưởng cho những ai quan tâm đến việc sử dụng tài nguyên một cách bền vững.
Lắp đặt dễ dàng và linh hoạt: Thiết kế treo tường của bồn tiểu nam TOTO UT901H mang lại sự linh hoạt trong việc lắp đặt và phù hợp với nhiều không gian phòng tắm khác nhau. Việc lắp đặt trở nên dễ dàng hơn, đồng thời giúp tiết kiệm diện tích và tạo cảm giác rộng rãi cho phòng tắm. Ngoài ra, sản phẩm còn đi kèm với bích thoát thải và dây cấp, giúp quá trình lắp đặt trở nên thuận tiện hơn.

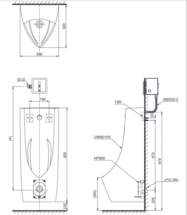
Thân sứ UW901HV
Móc treo T9R
Bích thoát thải HP900
Dây cấp nước 260033-2
Giá sốc:
9.298.800đ -18%
11.340.000đ
0%
0 đánh giá
0%
0 đánh giá
0%
0 đánh giá
0%
0 đánh giá
0%
0 đánh giá
Thợ giỏi chuẩn tay nghề, được đào tạo bài bản
Không phí ẩn, không vẽ vời, bảo hành nghiêm túc
| Thương hiệu | TOTO |
| Nơi sản xuất | Việt Nam |
| Bảo hành | 24 tháng |
| Vị trí lắp | Treo tường |
| Kiểu thoát | Thoát ngang |
| Kết hợp van xả | Van xả cảm ứng |
| Đầu nước vào | Back inlet |
| Lượng nước xả | 0.5L |
| Kích thước (DxRxC) | 420x380x920 mm |
Đăng ký xem hàng tại showroom:
Địa chỉ: 111 - 113 Kinh Dương Vương, Phường 12, Quận 6, TP.HCM
Hotline: 0868.804.440