Giỏ hàng của bạn đang trống
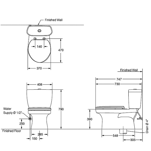
Những thông số kỹ thuật của bồn cầu 2 khối COTTO nắp êm C1389

Những ưu điểm bạn không thể bỏ qua của bồn cầu 2 khối COTTO nắp êm C1389
Bạn muốn tạo cho mình một không gian phòng tắm hiện đại và đẳng cấp? Hãy thực hiện ngay bằng cách nhấn vào nút "MUA NGAY" bồn cầu COTTO nắp êm C1389. Đồng thời, bạn cũng có thể liên hệ với HITA qua số điện thoại bên cạnh để nhận được sự tư vấn tận tâm và chuyên nghiệp. Khi lựa chọn HITA, bạn sẽ được trải nghiệm những ưu điểm đáng giá sau:
Bồn cầu hai khối C1389
Không bao gồm van khóa và đế cầu
100%
1 đánh giá
0%
0 đánh giá
0%
0 đánh giá
0%
0 đánh giá
0%
0 đánh giá
Thợ giỏi chuẩn tay nghề, được đào tạo bài bản
Không phí ẩn, không vẽ vời, bảo hành nghiêm túc
| Thương hiệu | COTTO |
| Nơi sản xuất | Thái Lan |
| Bảo hành | 24 tháng |
| Loại nắp | Nắp đóng êm |
| Kiểu xả | Xả nhấn |
| Lượng nước xả | 4.5/3L |
| Kiểu thoát | Thoát sàn |
| Tâm xả | 305mm |
| Hệ thống xả | Xả thẳng |
| Loại thân cầu | 2 khối |
| Thiết kế | Thân dài |
| Màu sắc | Trắng |
| Bộ sưu tập | Timon |
| Kích thước (DxRxC) | 730x408x790 mm |
| Thân cầu | C93884 |
| Mẫu nắp | C91311 |
Đăng ký xem hàng tại showroom:
Địa chỉ: 111 - 113 Kinh Dương Vương, Phường 12, Quận 6, TP.HCM
Hotline: 0868.804.440
Bồn cầu xả nước mạnh, tiết kiệm không gian. Hài lòng nhé.