Trang Trí Nhà - Cập nhật 3 năm trước
Tin tức / Mẹo hay / Trang Trí Nhà - Cập nhật 24 ngày trước
Không cần phải là nhà lầu cao tầng nhưng vẫn đủ không gian sinh hoạt, nhà 1 trệt 1 lầu hiện đang là lựa chọn rất phổ biến được nhiều gia đình ưa chuộng. Kiểu nhà này phù hợp cả ở đô thị lẫn nông thôn, dễ xây dựng, chi phí hợp lý và đặc biệt linh hoạt trong thiết kế. Với cách bố trí hợp lý, nhiều mẫu nhà 1 trệt 1 lầu đẹp hiện nay không chỉ đáp ứng tốt nhu cầu sinh hoạt mà còn mang đậm hơi hướng tiện nghi, hiện đại và cực đáng sống.
Nhà 1 trệt 1 lầu là kiểu nhà gồm một tầng trệt và một tầng lầu phía trên. Đây là dạng nhà ở quen thuộc cả ở thành phố lẫn nông thôn, dễ dàng thích ứng với nhiều diện tích đất và nhu cầu sử dụng khác nhau. So với nhà cấp 4, diện tích sử dụng được mở rộng theo chiều cao, giúp bạn có thêm không gian sinh hoạt mà không cần mở rộng diện tích đất.
Tối ưu chi phí xây dựng
So với nhà 2–3 tầng trở lên, chi phí xây dựng nhà 1 trệt 1 lầu dễ kiểm soát hơn rất nhiều, phù hợp với ngân sách của đa số gia đình. Đây cũng là lý do nhiều gia đình trẻ hoặc người mới xây nhà lần đầu thường ưu tiên kiểu nhà này.
Thích ứng với nhiều loại địa hình
Dù là đất hẹp ở đô thị hay đất rộng ở nông thôn, ở đồng bằng hay khu đất dốc, nhà 1 trệt 1 lầu đều có thể thiết kế linh hoạt. Bạn có thể xây theo dạng nhà ống hoặc nhà có sân vườn tùy theo điều kiện thực tế.
Dễ bố trí không gian
Một ưu điểm lớn của mẫu nhà 1 lầu 1 trệt là cách bố trí không gian rất rõ ràng. Tầng trệt cho sinh hoạt chung, tầng lầu cho không gian riêng, giúp mọi thứ gọn gàng và dễ sử dụng hơn.
Bạn vẫn có đầy đủ các khu vực như phòng khách, bếp, phòng ngủ, khu sinh hoạt chung mà không bị chồng chéo, chật chội.
Đáp ứng nhu cầu của gia đình nhỏ
Với gia đình 3–5 thành viền, mẫu nhà một trệt một lầu là một lựa chọn “vừa đủ”. Không quá rộng gây lãng phí, cũng không quá chật gây bất tiện trong sinh hoạt, đảm bảo riêng tư nhưng vẫn giữ được sự gắn kết.
Dễ mở rộng trong tương lai
Nếu sau này cần thêm không gian, bạn vẫn có thể cải tạo hoặc nâng cấp thêm tầng tum, sân thượng hoặc mở rộng phía sau mà không ảnh hưởng nhiều đến kết cấu chung. Điều này giúp ngôi nhà linh hoạt điều chỉnh nhu cầu sử dụng lâu dài của mỗi gia đình.
Đây là phần rất quan trọng khi bạn bắt đầu hình dung và lập kế hoạch xây dựng ngôi nhà của mình. Mỗi kích thước sẽ phù hợp với một kiểu bố trí khác nhau, nếu tận dụng tốt, ngay cả diện tích nhỏ vẫn có thể tạo nên một mẫu nhà đẹp 1 trệt 1 lầu rất tiện nghi.
Với diện tích mặt tiền có phần khiêm tốn và cũng là kiểu nhà khá phổ biến trong các khu đô thị đông đúc, mẫu nhà 1 trệt 1 lầu 4x12m được thiết kế tối ưu theo chiều cao, tạo nên không gian sống tiện nghi và thoáng đãng. Đây là lựa chọn phù hợp với những gia đình có quỹ đất nhỏ nhưng vẫn mong muốn sở hữu một không gian sống hiện đại và đầy đủ tiện nghi.

Với kiểu nhà này, các khu vực chức năng như phòng khách, bếp, phòng ngủ được phân chia rõ ràng, hợp lý, đảm bảo công năng sử dụng và sự riêng tư cho từng thành viên. Thông thường, tầng trệt sẽ bố trí phòng khách và bếp liên thông để tạo cảm giác rộng và thoáng hơn. Cầu thang đặt sát tường hoặc giữa nhà để tiết kiệm diện tích.
Bên cạnh đó, để tránh cảm giác bí, bạn nên tận dụng giếng trời hoặc các vách kính lớn. Đây là kích thước nhà 1 trệt 1 lầu khá phù hợp cho những ai muốn một ngôi nhà nho nhỏ nhưng vẫn đủ tiện nghi.
Mẫu nhà 1 trệt 1 lầu 4x20 nhỏ gọn nhưng lại không hề “tù túng”. Kiểu nhà này thường được kết hợp giếng trời hoặc ban công để đón gió, ánh sáng tự nhiên, giúp không gian luôn sáng thoáng và mát mẻ.
Với chiều dài 20m, bạn có rất nhiều lựa chọn trong việc bố trí. Không gian có thể chia thành nhiều khu rõ ràng như phòng khách, bếp, khu ăn uống, thậm chí có thể thêm một phòng ngủ nhỏ ở tầng trệt.
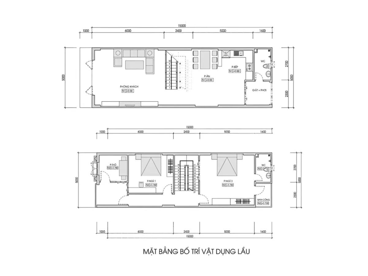
Kích thước 5x15m là một trong những lựa chọn phổ biến nhất hiện nay. Với chiều ngang 5m, không gian trở nên rộng rãi hơn khá nhiều so với nhà ngang 4m. Đây là kích thước rất “đẹp” để tạo nên một mẫu nhà 1 trệt 1 lầu đẹp vừa hiện đại vừa tiện nghi.
Bạn có thể dễ dàng bố trí phòng khách thoáng, bếp rộng và cầu thang không còn quá gò bó. Tầng lầu có thể thiết kế 2–3 phòng ngủ, thậm chí thêm một không gian sinh hoạt chung nhỏ. Mẫu nhà 1 trệt 1 lầu 5x15 cũng phù hợp với gia đình có từ 3-4 thành viên trở lên, cần không gian sinh hoạt riêng tư nhưng vẫn đủ kết nối.
So với kích thước 5x15, chiều dài 17m giúp bạn có thêm không gian để linh hoạt bố trí. Bạn có thể dành một phần diện tích cho sân trước hoặc sân sau, tạo cảm giác thoáng và dễ chịu hơn.

Với mặt tiền có phần rộng rãi hơn, bạn có thể thiết kế khoảng sân trước thông thoáng, vừa sử dụng cho nhu cầu để xe ô tô, vừa là nơi vui chơi và trồng cây xanh cho gia đình.

Mẫu nhà 1 trệt 1 lầu 5x20 đang trở thành lựa chọn lý tưởng cho các gia đình trẻ yêu thích không gian sống hiện đại, tiện nghi và tối ưu diện tích, đặc biệt “vừa vặn” với những gia đình ở phố thị. Đây là một trong những kích thước giúp bạn phát huy tối đa thiết kế của các mẫu nhà ống đẹp hiện đại.

Với diện tích 5x20m, bạn gần như có một không gian lý tưởng cho phép bố trí nhiều phòng, nhiều chức năng mà vẫn đảm bảo sự thông thoáng. Bạn có thể thiết kế đến 4 phòng ngủ, phòng làm việc, phòng sinh hoạt chung hoặc thậm chí là một khu thư giãn nhỏ. Nhờ vào sự cân đối giữa công năng và thẩm mỹ, mẫu nhà này không chỉ đáp ứng tốt nhu cầu ở mà còn thể hiện gu thẩm mỹ tinh tế của gia chủ.
Mẫu nhà 1 trệt 1 lầu diện tích 6x15m được nhiều gia đình lựa chọn nhờ sự cân đối về không gian và chi phí xây dựng hợp lý. Mẫu nhà này phù hợp với các khu đất phố hoặc khu dân cư đông đúc, mang lại không gian sống thoải mái nhưng vẫn đảm bảo tính thẩm mỹ hiện đại.

Thiết kế nhà 1 trệt 1 lầu còn giúp gia chủ mở rộng diện tích sử dụng mà không cần phải tốn quá nhiều chi phí cho phần móng và mái. Các phong cách thiết kế phổ biến thường tập trung vào sự đơn giản, tối ưu ánh sáng và thông gió tự nhiên, giúp không gian luôn thoáng đãng và dễ chịu.
Mẫu nhà 1 trệt 1 lầu 7x15m nổi bật với thiết kế mặt tiền hiện đại, tạo điểm nhấn bằng những đường nét tối giản và màu sắc trung tính tinh tế. Với chiều ngang lên đến 7m, ngôi nhà có ưu thế rõ ràng về kích thước, kết hợp ban công rộng, cửa kính lớn và các chi tiết ốp đá hoặc lam gỗ trang trí, giúp mặt tiền trở nên sang trọng và thu hút ánh nhìn. Không gian sân trước được tận dụng để trồng cây xanh, đặt tiểu cảnh nhỏ hoặc thiết kế chỗ đậu xe tiện lợi.

Phần mái thường sử dụng kiểu mái bằng hoặc mái lệch nhẹ, phù hợp với phong cách kiến trúc đô thị hiện đại. Đây là lựa chọn lý tưởng cho các gia đình trẻ yêu thích sự gọn gàng, tiện nghi và mang tính thẩm mỹ cao.
Với đường nét tinh giản, gọn gàng, mẫu nhà 1 trệt 1 lầu là một trong những kiểu nhà phổ biến nhất hiện nay, là lựa chọn được các gia đình trẻ ưa chuộng. Thiết kế tập trung vào hình khối đơn giản, đường nét rõ ràng và hạn chế chi tiết rườm rà.

Nhà 1 trệt 1 lầu mang phong cách hiện đại thường sử dụng các vật liệu như kính, gỗ, bê tông thường được sử dụng để tạo điểm nhấn. Không gian bên trong ưu tiên mở, liên thông giữa phòng khách và bếp để tạo cảm giác rộng rãi.
Nếu bạn thích sự gọn gàng, trẻ trung thì đây là một mẫu nhà 1 trệt 1 lầu đẹp rất đáng cân nhắc.
Không cần quá nhiều chi tiết cầu kỳ, những thiết kế đơn giản vẫn có thể mang lại sự dễ chịu và tiện dụng trong sinh hoạt hằng ngày. Những mẫu nhà 1 trệt 1 lầu đơn giản thường ưu tiên sự gọn gàng và tiện nghi, kết hợp với phần mái bằng, sử dụng màu sắc nhẹ nhàng và bố trí hợp lý để tạo cảm giác thông thoáng, phù hợp với nhu cầu sinh hoạt cơ bản của gia đình.

Dù mang phong cách tối giản, nhưng các mẫu nhà này vẫn đảm bảo sự tiện nghi và thẩm mỹ trong từng đường nét, giúp tối ưu chi phí hiệu quả.
Với thiết kế mái dốc đặc trưng, nhà 1 trệt 1 lầu mái Thái không chỉ mang đậm nét kiến trúc truyền thống mà còn giúp tạo sự thông thoáng, mát mẻ quanh năm. Kiểu mái này giúp ngôi nhà trông thanh thoát và cao ráo hơn, hòa hợp tốt với môi trường và cảnh quan xung quanh.

Mẫu nhà 1 trệt 1 lầu mái Thái thường được ưa chuộng ở cả thành thị lẫn nông thôn nhờ khả năng chống nóng hiệu quả và thẩm mỹ cao, phù hợp với khí hậu Việt Nam. Khi kết hợp với phong cách hiện đại hoặc tân cổ điển với các chi tiết như cột lớn, khung sắt ở ban công,.. tạo nên một tổng thể không gian vừa sang trọng, vừa gần gũi.
Mái Nhật có độ dốc nhẹ, mang lại cảm giác cân đối và hơi thở tinh tế, nhẹ nhàng. Mẫu nhà 1 trệt 1 lầu mái Nhật là lựa chọn hoàn hảo cho những ai yêu thích sự tối giản, yên tĩnh và gần gũi với thiên nhiên.

Ngoài ra, các mẫu nhà mái Nhật 1 trệt 1 lầu này còn dễ dàng kết hợp với các thiết kế sân vườn, gara hoặc ban công, tạo nên tổng thể hài hòa và sang trọng.
Tiết kiệm chi phí nhưng vẫn đảm bảo bền bỉ và đầy đủ công năng, mẫu nhà 1 trệt 1 lầu mái tôn có chi phí dễ tiếp cận và thi công nhanh. Hiện nay, mái tôn cũng được cải tiến với nhiều kiểu dáng và màu sắc, giúp ngôi nhà không còn quá đơn điệu.
Mẫu nhà 1 trệt 1 lầu 1 có tum là lựa chọn lý tưởng cho những gia đình muốn tối ưu diện tích sử dụng trên quỹ đất hạn chế. Thiết kế thêm tầng tum giúp bạn có thêm không gian cho phòng thờ, phòng giặt hoặc khu vực thư giãn. Đây là giải pháp mở rộng diện tích hiệu quả mà không cần xây thêm tầng lớn.
Sân thượng là một điểm cộng lớn trong thiết kế nhà hiện đại. Bạn có thể tận dụng để trồng cây, làm khu vườn nhỏ, nơi thư giãn, sân phơi, khu vực tổ chức party ngoài trời hoặc những buổi tụ họp nhỏ.

Với cách bố trí thông minh và hài hòa, mẫu nhà 1 trệt 1 lầu này đáp ứng trọn vẹn nhu cầu sống tiện nghi, thoải mái và đậm chất riêng cho mỗi gia chủ. Đây cũng là cách giúp ngôi nhà của bạn trở nên “có cảm xúc” hơn, không chỉ là nơi ở mà còn là không gian tận hưởng.

Nhà 1 trệt 1 lầu là kiểu nhà phù hợp với đa số gia đình Việt hiện nay. Chọn đúng kích thước, bố trí hợp lý và phong cách phù hợp sẽ giúp ngôi nhà trở nên dễ sống và sử dụng lâu dài.
Nếu bạn không cần một không gian có diện tích quá lớn, không muốn chi phí xây dựng quá cao nhưng vẫn đảm bảo đầy đủ tiện nghi và không gian sống thoải mái thì đây sẽ là mẫu nhà rất đáng cân nhắc!