Lavabo & vòi chậu - Cập nhật 6 năm trước
Giỏ hàng của bạn đang trống
Tin tức / Thiết Bị Vệ Sinh / Lavabo & vòi chậu - Cập nhật 6 năm trước
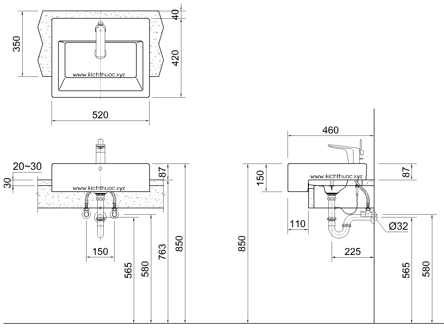
Công trình của bạn đang dần đi vào hoàn thiện và bạn đã lựa chọn được mẫu chậu rửa mặt ưng ý đến từ thương hiệu thiết bị vệ sinh hàng đầu TOTO, bây giờ bạn đang quan tâm đến cách lắp đặt chậu rửa mặt TOTO chính hãng đúng chuẩn? Vậy hãy để bài viết dưới đây của HITA giúp bạn trả lời câu hỏi đó. Dưới đây là những bước cơ bản, đơn giản nhất để bạn có thể lắp đặt lavabo đúng chuẩn tại nhà, đúng theo thiết kế và ý tưởng của nhà sản xuất.
Sau khi đã cố định và lắp đặt hệ thống nước cho chiếc chậu rửa mặt, điều cuối cùng bạn cần làm là hoàn thiện. SỬ dụng keo silicon để trám lại các khe, rãnh liên kết giữa thân chậu và tường hay mặt bàn, vừa mang tính thẩm mỹ cao, lại vừa để cho việc vệ sinh sản phẩm của bạn sau này trở nên dễ dàng hơn.
Bước cuối cùng là lau dọn và sắp xếp lại mọi thứ, lau sạch lavabo, thu dọn đồ dùng, dụng cụ… Như vậy là bạn đã hoàn thành việc lắp đặt chậu lavabo rồi!
Điều bạn cần chú ý khi lắp đặt những chiếc lavabo nói chung và những chiếc chậu rửa mặt TOTO nói riêng đó là hãy đọc kĩ thông số kĩ thuật của từng mẫu sản phẩm để lựa chọn cho phù hợp cũng như chuẩn bị các đường ống nước và vị trí lắp đặt tốt nhất để đảm bảo việc lắp đặt và sử dụng sau này của bạn luôn đạt hiệu quả cao.
Thêm vào đó, trong suốt quá trình vận chuyển cũng như lắp đặt, hãy luôn đảm bảo cần thận với lớp men sứ của sản phẩm, hạn chế các va đập, các tác động không mong muốn của ngoại lực có thể gây nứt, bể hoặc trầy xứ lớp men…
Xem ngay các sản phẩm chậu rửa lavabo thương hiệu TOTO ngay tại => Chậu lavabo TOTO
Công ty TNHH Nội Thất Hita
Đại lý chuyên cung cấp thiết bị vệ sinh chính hãng hàng đầu
111-113 Kinh Dương Vương, P12, Q6, TP.HCM
0868 804 440 Nội thất HITA
support@hita.com.vn Nội thất HITA
Lavabo & vòi chậu - Cập nhật 6 năm trước
Lavabo & vòi chậu - Cập nhật 2 năm trước
Lavabo & vòi chậu - Cập nhật 7 năm trước
Lavabo & vòi chậu - Cập nhật 2 năm trước
Lavabo & vòi chậu - Cập nhật 8 năm trước
Lavabo & vòi chậu - Cập nhật 1 năm trước
Lavabo & vòi chậu - Cập nhật 1 năm trước
Lavabo & vòi chậu - Cập nhật 1 năm trước
Lavabo & vòi chậu - Cập nhật 1 năm trước

