Bản vẽ thiết kế nhà đẹp theo phong thủy gồm những yếu tố nào?

Bản vẽ thiết kế nhà đẹp theo phong thủy gồm những yếu tố nào?

Thiết kế một ngôi nhà chuẩn đẹp không chỉ thỏa mãn yếu tố thẩm mỹ mà còn đáp ứng công năng sử dụng tối ưu cho các nhu cầu sinh hoạt của gia đình và hợp phong thủy với gia chủ. Bởi vậy, trong quá trình thiết kế nhà ở các kiến trúc sư cần quan tâm đến rất nhiều vấn đề, khía cạnh khác nhau của ngôi nhà và đặc biệt là phải có bản vẽ nhà đẹp, rõ ràng, tránh rủi ro, sai phạm không đáng có sau khi hoàn thành thi công.

Bản thiết kế nhà ở là gì?

Bản thiết kế nhà ở là một bộ hồ sơ hoàn chỉnh về toàn bộ chi tiết của căn nhà
Bản thiết kế nhà ở là một bộ hồ sơ hoàn chỉnh về toàn bộ chi tiết của căn nhà

Bản thiết kế nhà ở là một bộ hồ sơ hoàn chỉnh về toàn bộ chi tiết của căn nhà, là tập hồ sơ diễn giải về hình dáng, kích thước và kết cấu ngôi nhà hoàn chỉnh. 

Thông qua bản vẽ kiến trúc nhà đẹp mà các kỹ sư, nhà thầu xây dựng biết được quy cách tạo nên một ngôi nhà như diện tích thế nào, kích thước và cách bố trí ra sao,…

Bản thiết kế nhà hiện đại là một bộ hồ sơ từ 80-200 trang A3, bao gồm 3 phần chính: phần kiến trúc, phần kết cấu và phần điện nước.

Bản thiết kế nhà hiện đại là một bộ hồ sơ từ 80-200 trang A3, bao gồm 3 phần chính: phần kiến trúc, phần kết cấu và phần điện nước
Bản thiết kế nhà hiện đại là một bộ hồ sơ từ 80-200 trang A3, bao gồm 3 phần chính: phần kiến trúc, phần kết cấu và phần điện nước

Phần kiến trúc

Ở phần này gia chủ sẽ nhìn thấy được kiểu dáng và màu sắc của ngôi nhà như thế nào, chất liệu sử dụng cho từng mảng là gì,… Từ đó, hình dung ra được căn nhà sau khi hoàn thành xong.

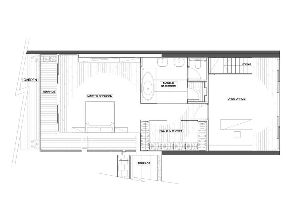
Chúng ta sẽ có được hình ảnh mặt cắt của ngôi nhà theo từng tầng, thể hiện kích thước của từng mảng tường và vị trí đặt cầu thang trong nhà. 

Phần kiến trúc sẽ giúp gia chủ sẽ nhìn thấy được kiểu dáng và màu sắc của ngôi nhà như thế nào, chất liệu sử dụng cho từng mảng là gì,…
Phần kiến trúc sẽ giúp gia chủ sẽ nhìn thấy được kiểu dáng và màu sắc của ngôi nhà như thế nào, chất liệu sử dụng cho từng mảng là gì,…

Đồng thời, cho thấy diện tích và cách bố trí các phòng, khu vực trong nhà theo từng tầng, hướng giao thông giữa các phòng với nhau. Tất nhiên, trên bản vẽ sẽ có chú thích cụ thể để cho gia chủ dễ dàng theo dõi và hiểu được liền.

Trên bản vẽ sẽ có chú thích cụ thể để cho gia chủ dễ dàng theo dõi và hiểu được liền
Trên bản vẽ sẽ có chú thích cụ thể để cho gia chủ dễ dàng theo dõi và hiểu được liền

Phần kết cấu

Mở đầu hồ sơ phần kết cấu là các ghi chú chung trong xây dựng như: lớp thép bảo vệ bên trong bê tông, khoảng cách thép chịu lực của dầm, móc thép chịu lực, cấu tạo của đai cột và dầm,…

Mở đầu hồ sơ phần kết cấu là các ghi chú chung trong xây dựng
Mở đầu hồ sơ phần kết cấu là các ghi chú chung trong xây dựng

Cấu tạo móng và mặt bằng móng: Tùy thuộc vào đất cùng độ phức tạp của công trình để đưa ra phương án làm móng phù hợp như móng đơn, móng cọc hay móng bè,…

Mặt bằng định vị và chi tiết của cột: Thể hiện được vị trí và khoảng cách giữa các cột với nhau.

Kết cấu sàn tầng.

Tùy thuộc vào đất cùng độ phức tạp của công trình để đưa ra phương án làm móng phù hợp
Tùy thuộc vào đất cùng độ phức tạp của công trình để đưa ra phương án làm móng phù hợp

Phần điện nước

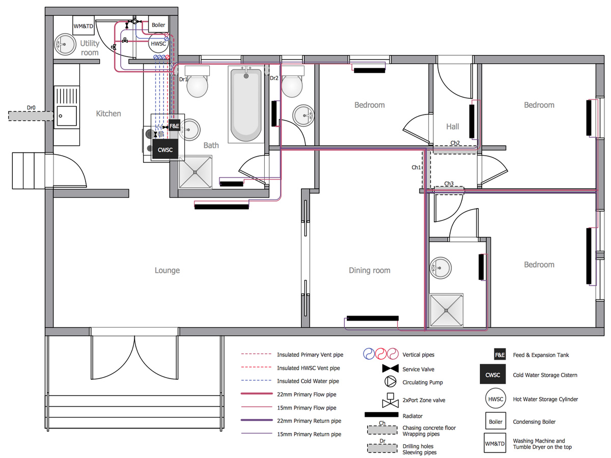
Phần điện sẽ thể hiện mặt bằng bố trí đường điện của các tầng, gồm có điện động lực, hệ thống chiếu sáng và điều hòa thông gió. Ngoài ra, chống sét tầng mái và một số thiết bị điện khác như điều hòa, tủ lạnh, internet,… cũng được trình bày trên bản vẽ.

Phần điện sẽ thể hiện mặt bằng bố trí đường điện của các tầng, gồm có điện động lực, hệ thống chiếu sáng và điều hòa thông gió
Phần điện sẽ thể hiện mặt bằng bố trí đường điện của các tầng, gồm có điện động lực, hệ thống chiếu sáng và điều hòa thông gió

Phần nước sẽ bao gồm hệ thống cấp thoát nước tại các tầng và phòng như bếp, Wc, phòng giặt phơi,… Đồng thời, chỉ ra cách bố trí các đường ống cấp thoát nước và những công trình dưới ngầm. 

Phần nước sẽ bao gồm hệ thống cấp thoát nước tại các tầng và phòng như bếp, Wc, phòng giặt phơi,…
Phần nước sẽ bao gồm hệ thống cấp thoát nước tại các tầng và phòng như bếp, Wc, phòng giặt phơi,…

Tầm quan trọng của những bản thiết kế nhà hiện đại

Một bộ hồ sơ thiết kế kiến trúc nhà ở hiện nay có mức chi phí rơi vào khoảng 40 đến 200 triệu đồng, tùy vào quy mô và yêu cầu được đưa ra. 

Nếu so sánh với những quan niệm xây dựng trước đây thì mức giá trên là khá đắt tuy nhiên khi tính trên giá trị của căn nhà thì không đáng kể.

Ngôi nhà càng nhiều tầng thì yêu cầu về kết cấu càng cao. Do đó, việc bỏ ra khoản chi phí thiết kế chỉ chiếm khoản 1% chi phí xây dựng nhưng lại đảm bảo hơn về kết cấu, chất lượng thi công, hạn chế tối đa những sai sót có thể phát sinh là điều hoàn toàn xứng đáng.

Những bản thiết kế nhà hiện đại giúp đảm bảo hơn về kết cấu, chất lượng thi công, hạn chế tối đa sai sót có thể phát sinh
Những bản thiết kế nhà hiện đại giúp đảm bảo hơn về kết cấu, chất lượng thi công, hạn chế tối đa sai sót có thể phát sinh

Ngôi nhà là nơi có tầm ảnh hưởng rất lớn tới sự an toàn của các thành viên trong gia đình. Bởi vậy, những bản thiết kế nhà đẹp, chất lượng đã trở thành một phần không thể thiếu trong quá trình xây dựng mà bất cứ nhà thầu uy tín nào cũng quan tâm.

Hơn nữa, việc thống nhất về bản vẽ thiết kế nhà ở sẽ giúp quá trình xây dựng được thuận lợi và nhanh chóng hơn. Thực tế, các nhà thầu chỉ cần dựa theo bản vẽ mà thi công, không phải tốn quá nhiều thời gian sửa chữa và đảm bảo về mặt chi phí.

Những bản thiết kế nhà đẹp, chất lượng đã trở thành một phần không thể thiếu trong quá trình xây dựng 
Những bản thiết kế nhà đẹp, chất lượng đã trở thành một phần không thể thiếu trong quá trình xây dựng 

Hy vọng rằng, với những thông tin mà bài viết chia sẻ về bản thiết kế nhà ở, các độc giả của HITA đã có cái nhìn chi tiết nhất về chủ đề này. Chắc chắn, chúng sẽ hỗ trợ bạn trong quá trình thiết kế và xây dựng một căn nhà ưng ý. Và đừng quên tiếp tục đồng hành cùng HITA trong các chủ đề thú vị tiếp theo như các bản thiết kế nhà kiểu mỹ đẹp nhất, địa chỉ bán vật liệu mô hình kiến trúc uy tín,...

Thiết kế một ngôi nhà chuẩn đẹp không chỉ thỏa mãn yếu tố thẩm mỹ mà còn đáp ứng đầy đủ công năng sử dụng
Thiết kế một ngôi nhà chuẩn đẹp không chỉ thỏa mãn yếu tố thẩm mỹ mà còn đáp ứng đầy đủ công năng sử dụng

Thành lập bản vẽ nhà đẹp, hợp theo phong thủy có quan trọng không?

Từng ngóc ngách, phòng ốc trong căn nhà đều được cả gia đình sử dụng hàng ngày và có ảnh hưởng rất lớn đến cuộc sống thường nhật của các thành viên. Bởi vậy mà trước khi bắt tay vào xây dựng, chúng ta cần có bản vẽ thiết kế nhà đẹp riêng cho từng nhu cầu, vừa phù hợp với thói quen sinh hoạt và vừa hợp phong thủy.

Trước khi bắt tay vào xây dựng, chúng ta cần có bản vẽ thiết kế nhà đẹp vừa phù hợp với thói quen sinh hoạt và vừa hợp phong thủy.
Trước khi bắt tay vào xây dựng, chúng ta cần có bản vẽ thiết kế nhà đẹp vừa phù hợp với thói quen sinh hoạt và vừa hợp phong thủy.

Dựa vào đâu để tạo dựng bản vẽ thiết kế nhà dân đầy đủ theo phong thủy

Một căn nhà hợp phong thủy khi dựa theo tuổi, mệnh hoặc xem Bát Trạch của gia chủ, người đứng tên ngôi nhà. Đầu tiên việc xác định năm xây nhà, hướng nhà hoặc hướng cổng, hướng các phòng ốc đều dựa theo tuổi và mệnh của gia chủ để lên sơ khảo bản vẽ thiết kế.

Một căn nhà hợp phong thủy khi dựa theo tuổi, mệnh hoặc xem Bát Trạch của gia chủ
Một căn nhà hợp phong thủy khi dựa theo tuổi, mệnh hoặc xem Bát Trạch của gia chủ

Tiếp theo, dựa vào Bát Trạch để thiết kế chi tiết phong thủy dựa vào cung mệnh của các thành viên còn lại trong gia đình. Bát Trạch là chỉ 8 phương vị quẻ hào trong ngôi nhà, được khoa học phong thủy nghiên cứu lâu đời và đem lại kết quả khá chính xác.

Bát Trạch là chỉ 8 phương vị quẻ hào trong ngôi nhà
Bát Trạch là chỉ 8 phương vị quẻ hào trong ngôi nhà

Theo đó, mỗi cung mệnh của các thành viên trong gia đình khi kết hợp với 8 hướng trong nhà sẽ tạo ra các dòng khí khác nhau, có thể có tác động tốt hoặc xấu. Như vậy có thể hướng nhà sẽ hợp với người này nhưng không hợp với người kia. Bởi vậy mà hướng nhà theo bản vẽ nhà hiện đại phải bám sát cung mệnh của người làm chủ trong gia đình.

 

Mỗi cung mệnh của các thành viên trong gia đình khi kết hợp với 8 hướng trong nhà sẽ tạo ra các dòng khí khác nhau, có thể có tác động tốt hoặc xấu
Mỗi cung mệnh của các thành viên trong gia đình khi kết hợp với 8 hướng trong nhà sẽ tạo ra các dòng khí khác nhau, có thể có tác động tốt hoặc xấu

Bản vẽ thiết kế nhà ở theo phong thủy gồm những yếu tố quan trọng nào?

Những yếu tố phong thủy quan trọng khi thiết kế nhà đẹp bao gồm hướng nhà, hướng cửa, móng, cầu thang, vị trí phòng ốc,... Những chi tiết này đều được thể hiện trên bản vẽ chi tiết mặt bằng nhà và bản vẽ nhà ở về phối cảnh sau khi được chỉnh sửa, tham khảo ý kiến.

Về hướng nhà: Quan trọng nhất khi xây nhà là cần xác định hướng hợp mệnh với gia chủ. Căn cứ vào năm tuổi của gia chủ để có thể xác định được cung mệnh và xem hướng nhà nào là tốt nhất cho gia chủ, giúp mang lại may mắn, thuận lợi và làm ăn phát đạt. 

Quan trọng nhất khi xây nhà là cần xác định hướng hợp mệnh với gia chủ
Quan trọng nhất khi xây nhà là cần xác định hướng hợp mệnh với gia chủ

Về vị trí xây nhà: Nên lựa chọn khu vực đất cao, lưng tựa núi mặt hướng thủy là tốt nhất. Trong các khu dân cư thì nên tránh xây gần cạnh các chùa, miếu, bãi tha ma,... cũng nên tránh ngõ cụt, góc ngã ba có con đường đâm thẳng vào nhà. Không nên xây nhà tại các nơi có âm khí cao, khí độc, hoặc các nơi sử dụng thuốc trừ sâu, hóa chất độc hại.

Về hướng mở cửa chính, cổng chính: Các bản vẽ thiết kế nhà đơn giản theo phong thủy phải thể hiện hướng mở cửa, cổng hợp với tuổi của gia chủ, không đặt vị trí cửa tại nơi có con đường đâm thẳng vào nhà hoặc tại các nơi có vòng cung, đoạn rẽ ngược gấp khúc.

Các bản vẽ thiết kế nhà theo phong thủy phải thể hiện hướng mở cửa, cổng hợp với tuổi của gia chủ
Các bản vẽ thiết kế nhà theo phong thủy phải thể hiện hướng mở cửa, cổng hợp với tuổi của gia chủ

Về vị trí phòng bếp: Không đặt vị trí phòng bếp ngay dưới hoặc bên trên nhà vệ sinh của các tầng, không để cửa sổ hoặc khoảng trống sau lưng bếp. Nên đặt vị trí bếp tại cung xấu để trấn áp tai họa và cửa bếp hoặc tay vặn bếp ga nên xoay về hướng tốt.

Không đặt vị trí phòng bếp ngay dưới hoặc bên trên nhà vệ sinh của các tầng, không để cửa sổ hoặc khoảng trống sau lưng bếp
Không đặt vị trí phòng bếp ngay dưới hoặc bên trên nhà vệ sinh của các tầng, không để cửa sổ hoặc khoảng trống sau lưng bếp

Về nơi thờ cúng: Phòng thờ hoặc bàn thờ trên một bản vẽ nhà đẹp cần được đặt tại vị trí cung xấu để nhằm trấn áp tai họa và mặt trước bàn thờ hoặc ảnh thờ nên xoay nhìn về hướng tốt. Kiêng kỵ đặt phòng thờ, bàn thờ ngay dưới hoặc bên trên khu vệ sinh các tầng khác và không kê sát bàn thờ vào cửa sổ hoặc để khoảng trống sau lưng bàn thờ.

Về vị trí phòng ngủ và giường ngủ: Vì phòng ngủ là nơi sinh hoạt thường xuyên của các thành viên trong gia đình, nên cần đặt tại cung tốt và xoay chân về hướng tốt. Giường ngủ không nên đặt ngay trên bếp hoặc dưới ban thờ, tránh đặt giường ngủ ngay dưới các thanh ngang trên trần, quạt trần, đèn chùm và các vật trang trí có góc nhọn đầy sát khí. Cũng không nên quay đầu giường ngủ ra hướng cửa sổ, cửa chính hoặc cửa nhà vệ sinh.

Vì phòng ngủ là nơi sinh hoạt thường xuyên của các thành viên trong gia đình, nên cần đặt tại cung tốt và xoay chân về hướng tốt
Vì phòng ngủ là nơi sinh hoạt thường xuyên của các thành viên trong gia đình, nên cần đặt tại cung tốt và xoay chân về hướng tốt

Về vị trí khu vực vệ sinh: Đặt tại các cung xấu trong nhà để trấn áp hướng xấu, lưng bồn cầu không nên quay về hướng tốt. Không đặt nhà vệ sinh ngay trên phòng bếp, trên phòng thờ hay trên vị trí giường ngủ.

Khu vực vệ sinh nên đặt tại các cung xấu trong nhà để trấn áp hướng xấu, lưng bồn cầu không nên quay về hướng tốt
Khu vực vệ sinh nên đặt tại các cung xấu trong nhà để trấn áp hướng xấu, lưng bồn cầu không nên quay về hướng tốt

Hy vọng rằng, những thông tin trên sẽ hỗ trợ bạn đọc trong quá trình xây dựng nên một bản vẽ nhà đẹp, đáp ứng đầy đủ nhu cầu sinh hoạt và hợp phong thủy. Một vài chủ đề nổi bật khác như bản vẽ thiết kế nhà 5x20 hay bản vẽ thiết kế nhà gác lửng 5x20 sẽ được HITA gửi tới độc giả trong bài viết tiếp theo. Đừng bỏ qua nhé!

Nhận xét bài viết (0 bình luận)
HỎI VÀ ĐÁP (0 bình luận)
Call Button Zalo Button
Câu chúc tết 2026 Hita
Câu chúc tết 2026 Hita
Pháo hoa Hita 2025 Pháo hoa Hita 2025
Linh vật Hita 2025 Linh vật Hita 2025